CASE COLONICHE IN COLLINA

Riqualificazione di due case coloniche nel trevigiano

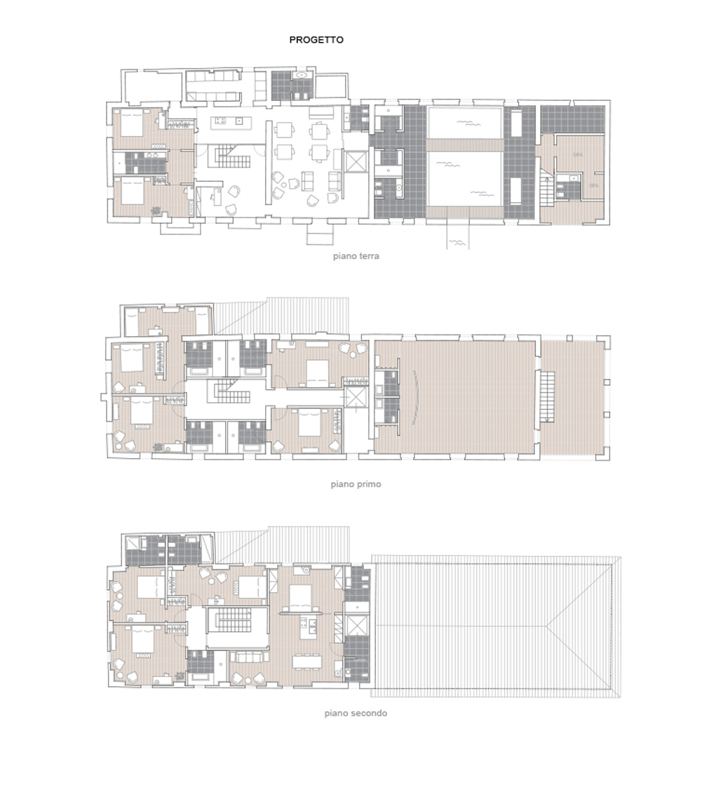
Un progetto di ricettività ed accoglienza turistica che prevede la riqualificazione energetica di due antiche case coloniche in un contesto immacolato dove le colline circostanti sono esattamente com’erano centinaia di anni fa.
Isolamenti termici come il cappotto interno, gli impianti radianti che garantiscono la climatizzazione interna secondo gli standard CasaClima, la ventilazione meccanica controllata e l’accesso alle fonti rinnovabili per la produzione di energia garantito dall’approvvigionamento di legname dai boschi circostanti sono i criteri fondamentali che guidano la progettazione.
Questi immobili storici si trovano in una zona a rischio sismico 2 quindi, durante le operazioni di restauro e di riqualificazione energetica, saranno oggetto di operazioni di miglioramento antisismico consistenti.

Category:
Clienti:

Privati

Architetto

Lucia Corti, Fabio Falchi

Anno:

2018

Luogo:

Susegana (TV)

Programma:

Ristrutturazione

Stato:

Terminato

Tags: